Bauten/Projekte
Werkliste
Texte
Presse
Büro
Nr.:
0634
Name:
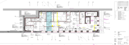
Restaurant Sihlpavillon
Ort:
Zürich
Art/Jahr:
Studienauftrag 2000, 1. Preis, Ausführung 2007-2008
Bauherr:
Liegenschaftenverwaltung der Stadt Zürich / Amt für Hochbauten der Stadt Zürich
Architekt:
Thomas Schregenberger GmbH
Bearbeitung:
Thomas Schregenberger, Daniela Lässer, Andrzej Egli, Stefan Schüpbach, Roberto Lüder, Caspar Schärer
Spezialisten:
Bauleitung: Junod Epper GmbH
Bauingenieur: Aerni + Aerni
HLKS-Ingenieur: Hobler Engineering
Elektroingenieur: Gutknecht Elektroplanung
Fassadenplanung: GKP Fassadentechnik AG
Bausumme:
2.5 Mio. CHF
Projektbeschrieb